Produkte > Spannelemente > Spannschrauben > Baureihe 200

NORIS | Spannschrauben

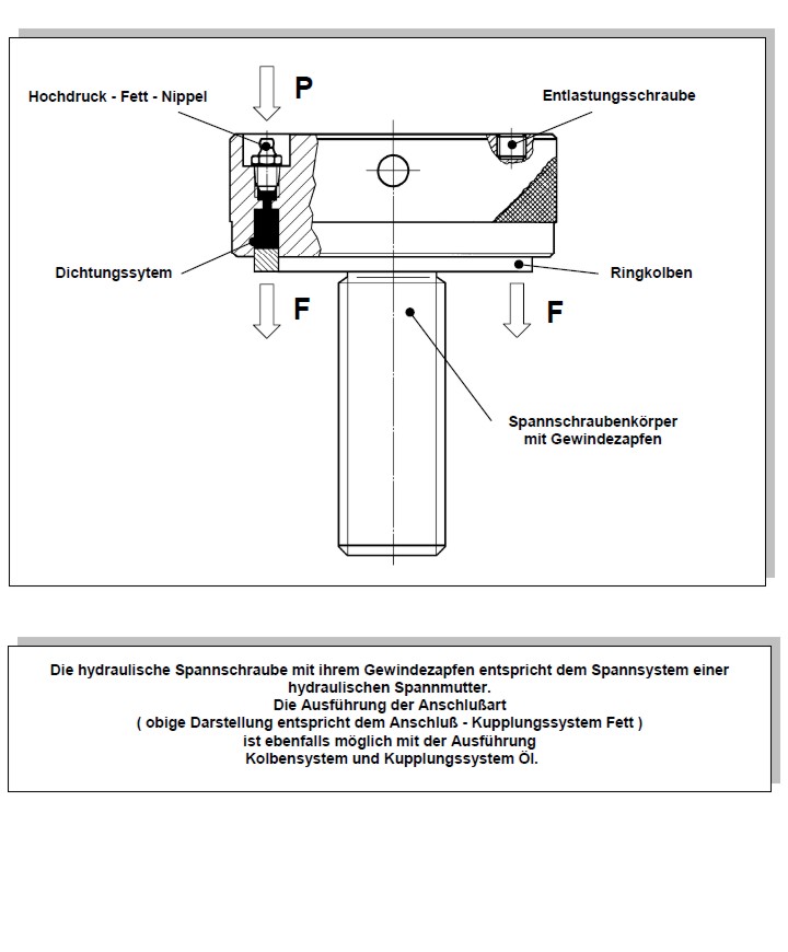
NORIS | Baureihe 200

Bei Fragen erreichen Sie uns unter:

Tel: +49 (0)911 52 15 063

Fax: +49 (0)911 52 24 40_

E-Mail: info@noris-armaturen.de

NORIS Armaturen Burkenstein
GmbH & Co. KG

Puscherstraße 3

D-90411 Nürnberg